Sandra Soler Studio propone una nueva sede para la compañía de energía renovable Engiaux, en Vic, Barcelona, que refleja los valores de la firma mediante un diseño limpio y sencillo. El espacio, centrado en las necesidades de las personas, late al compás de la lucha contra el cambio climático.
Sandra Soler proyecta este espacio bajo la filosofía Human Next, buscando evocar emociones positivas y sentido de pertenencia. El objetivo del proyecto es crear un espacio de trabajo calmado y que invite a la concentración mediante un lenguaje simple y una paleta cromática que se mueve entre blancos, amarillos y el azul corporativo de la marca.
Un entorno emocionante
La iluminación muy afinada, la selección de materiales y la integración sutil de la naturaleza en el interior componen un entorno emocionante a la vez que cálido y sin complicaciones estéticas.
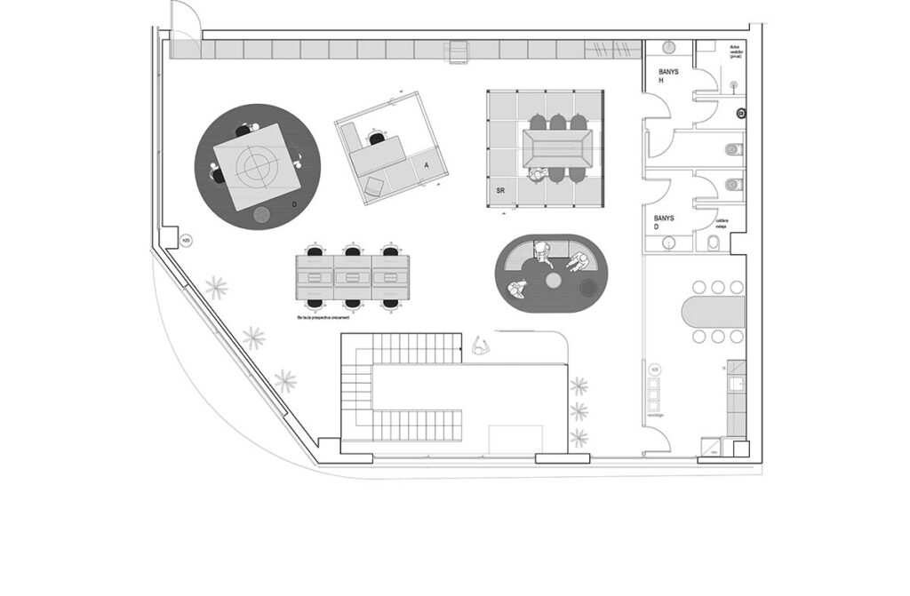
La nueva sede de Engiaux cuenta con dos niveles. En la planta baja, al pie de la escalera, una gran estructura retroiluminada con el logo de la compañía preside el área. En la entrada de la primera planta se dispone un espacio de espera o reuniones informales. Dos grandes cubos blancos operativos, diseñados por la interiorista, son los protagonistas de la zona de trabajo. Uno de ellos alberga la sala de reuniones y el otro está destinado a facilitar la concentración del departamento de administración. Los lados acristalados de los cubos permiten conectar visualmente con el resto del espacio.
La filosofía Human Next busca evocar emociones positivas
Los cubos acristalados, diseño de Sandra Soler, son producidos por la carpintería Portet. Las lámparas Archetto de Antonangeli unen las dos plantas. El sofá azul marino es de Casual. La mesa de centro de Pedrali. La zona de trabajo cuenta con sillas de Interstuhl y una gran lámpara de Lighnet adquirida en CA2L. Los taburetes del office son de Pedrali. La mesa de la sala de reuniones es de JG Open Systems y las sillas son el modelo Dunas de Inclass. Las papeleras Biel son de Made Design.
Ficha técnica:
- Engiaux, energías renovables.
- Vic, Barcelona
- Proyecto: Sandra Soler Studio.
- Dirección: Sandra Soler.
- Mobiliario: Pedrali, Interstuhl, JG Open Systems, Inclass, Made Design.
- Iluminación: Antonangeli, Lighnet, CA2L.
- Texto: Alex Cienfuegos.
- Fotografía: Fragment Imatges.








