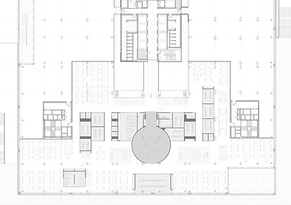
El proyecto de Roto Estudio para la nueva oficina en Madrid de One Trust, compañía de seguridad digital, destaca por su materialidad y funcionalidad. El espacio abierto, solo interrumpido por la distribución reticular de las columnas, se estructura alrededor de una pieza central y alberga las zonas comunes: salas de reuniones, cabinas, office y almacenes.
El concepto del proyecto busca la intersección armónica de formas geométricas, como el rectángulo y el círculo, que convergen en el área central del ágora, el corazón de la oficina. Este elemento representa la esencia colaborativa del nuevo espacio de trabajo, donde los empleados pueden interactuar, compartir ideas y celebrar eventos corporativos.
La geometría de los techos
El resto de las piezas busca romper la escala de las zonas abiertas, despegándose ligeramente de la piel del edificio en aquellos puntos en los que se aproxima.
La geometría se extiende a los techos que presentan transiciones suaves y curvas. Estas formas dinámicas no solo enriquecen la estética, sino que también mejoran la acústica y la sensación de amplitud. El techo desaparece en las zonas de trabajo para enfatizar este efecto.
La paleta de materiales cálida
Las zonas de trabajo están estratégicamente colocadas donde hay más luz para favorecer el bienestar laboral y la concentración. Además, se entrelazan con áreas de trabajo colaborativo, salas de reuniones y zonas de relajación, para evitar un open space monótono.
La paleta de materiales es cálida y atemporal. Se incorporan materiales ligados al ámbito doméstico, como la cerámica de pequeño formato y los estucos. Estos elementos interactúan con la luz que crea atmósferas íntimas y acogedoras en las zonas de relajación, resulta más funcional en las zonas de trabajo y dibuja las geometrías identitarias mediante foseados circulares.
Es un espacio que fomenta la creatividad y la colaboración
El volumen circular se convierte en una gran ágora para celebrar eventos o como zona de colaboración. Construye el proyecto Gabiteco y la ingeniería es de FSL. Pavimentos de Tarkett y superficies de Egger. La sillería de la sala de reuniones es de Andreu World. Las cabinas son de Framery y la iluminación de Meicon y Signify.
Ficha técnica:
- One Trust Merlin Properties
- Madrid
- Proyecto: Roto Estudio.
- Constructora: Gabiteco.
- Ingeniería: FSL.
- Iluminación: Meicon Lighting.
- Pavimentos: Tarkett.
- Mecanismos: Jung.
- Superficies: Egger.
- Texto: Marco Brioni.
- Fotografía: Yuichi Kimura.








