El estudio Kadawittfeld Architektur desarrolla, con la participación de los usuarios, un nuevo centro de startups para la Fundación Universitaria de Colonia, en Alemania. Este entorno adaptable ofrece una variedad de espacios que fomenta la interacción creativa y la colaboración entre las startups, la universidad y las empresas.
La Fundación Universitaria de Colonia está detrás del proyecto InnoDom que se levanta en el campus de Lindenthal, en Colonia. El edificio sin barreras da servicio al usuario principal, Gateway (Centro de Excelencia para Startups de la Universidad de Colonia), así como a estudiantes y proveedores de servicios que apoyan a las startups.
El diseño de los perfiles realza el carácter industrial del edificio
La arquitectura, alejada de lo convencional, busca la estética de un taller industrial. Un aspecto especial del edificio son los dos espacios de doble planta, especialmente diseñados con acristalamiento panorámico y colores intensos que transmiten el estilo innovador del centro de investigación.
Una pequeña plaza protegida emerge tras el InnoDom, mientras que los retranqueos escalonados crean tres terrazas en la azotea. La fachada funciona como una envolvente homogénea para el volumen cristalino que alberga.
El volumen general alberga dos espacios impactantes, cada uno con su propia atmósfera. Funcionan como escaparates abiertos a la ciudad y ofrecen un lugar ideal para relajarse, inspirarse, comunicarse, experimentar, informar o conectar.
Los acentos monocromáticos se combinan para crear una imagen vibrante
Like it 1 se encuentra en la tercera y cuarta planta: la capa semitransparente de metal expandido de color resalta enérgicamente la variedad de usos. Ofrece asientos escalonados para reuniones y un banco junto a la ventana panorámica, una pared de escalada y una pantalla para jugar o ver retransmisiones deportivas.
Like it 2 interactúa con la ciudad a pie de calle. El acogedor espacio de dos plantas se define por una amplia hilera de asientos escalonados que ofrece una magnífica vista. El revestimiento ligero de metal expandido de color permite ver la entrada, por un lado, y la zona de cafetería, por el otro. Las mesas y sillas móviles ofrecen gran flexibilidad; hay un futbolín debajo de la escalera, así como otro cómodo rincón para sentarse.
Sensación de luminosidad
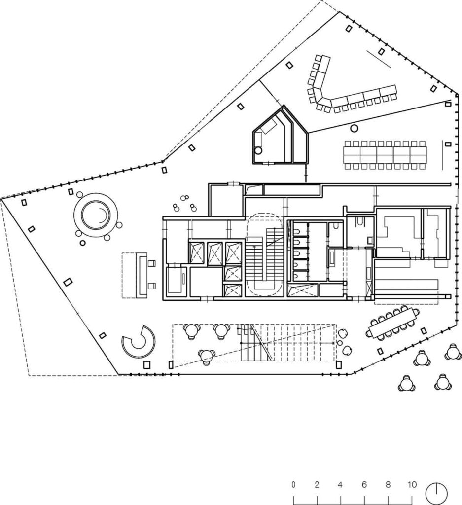
La planta baja alberga el vestíbulo de recepción, la cafetería y las zonas de conferencias y eventos. Al cruzar la puerta principal, la recepción transmite sensación de luminosidad y un ambiente agradablemente electrizante. Un mostrador de recepción monolítico de madera, junto con la textura rugosa del hueco de acceso, subrayan el carácter industrial y, a la vez, acogedor del laboratorio. Dos zonas de descanso, ubicadas justo al lado de la entrada, permiten relajarse cómodamente.
En las plantas superiores, las áreas de oficina abierta envuelven el núcleo de acceso que recorre todos los niveles. La gama de colores elegida para las zonas de trabajo se basa en tonos grises brillantes, neutros y sencillos. Las paredes, techos, paneles absorbentes de sonido y el mobiliario fomentan la paz y la tranquilidad, la concentración y la productividad en el trabajo. Los espacios abiertos en los techos y las superficies de suelo sin juntas en colores brillantes confieren a las salas un aire juvenil e industrial. Los módulos funcionales que rodean el núcleo de acceso crean un ambiente colorido y refrescante con acabados lisos, lacados o textiles.
Las áreas de la azotea
Como complemento, en contraste con los puestos de trabajo interiores, el InnoDom cuenta con un total de tres terrazas distribuidas en dos niveles que difieren en forma, ubicación y uso. Los usuarios siempre tienen la oportunidad de incluir tiempo fuera del escritorio en su flujo de trabajo.
La terraza Early Bird en la cuarta planta, con suelo de tartán, es ideal para una sesión de yoga por la mañana. En la tercera planta, Green Thumb ofrece las condiciones perfectas para la jardinería urbana. La terraza Sundowner disfruta de una gran pérgola que proporciona sombra y está preparada para una iluminación ambiental, además de una gran mesa alta comunitaria. Las áreas de la azotea que no se utilizan para terrazas ni para albergar tecnología de instalaciones se han ajardinado.
Se presta atención a la sostenibilidad al escoger los materiales
El área abierta frente a la entrada principal ofrece una vista panorámica y acogedora del vestíbulo. El lado opuesto a la calle cuenta con asientos y césped, además de árboles y arbustos. El edificio está acristalado de suelo a techo, con pilastras y chapa de aluminio perforada. En las amplias áreas de las plantas superiores, el aluminio sobresale escalonadamente de la línea principal de la fachada, creando una emocionante progresión geométrica.
El InnoDom ha sido diseñado para reducir al máximo el consumo de energía. La refrigeración básica en la planta baja funciona mediante suelo radiante. Elementos de refrigeración adicionales, como perfiles radiantes montados en el techo, cubren los picos de demanda y permiten la personalización de los ambientes. Las zonas de oficinas se calientan mediante paneles calefactores montados bajo los techos vistos y ubicados a lo largo de la fachada.
El equipamiento de la oficina
En la recepción, un mostrador de madera contrasta con la textura rugosa del hueco de acceso y subraya el carácter industrial del laboratorio. Un jardín vertical y unos bancos tapizados en colores vibrantes anuncian el proyecto interior.
Se utilizan paneles de revestimiento acústico de madera Ligno y mobiliario de exterior reciclable de Fermob. El equipamiento de la oficina se basa en acero, madera, linóleo y telas, y en su mayor parte es reciclable o contiene una alta proporción de materiales reciclados. Muchos muebles han sido aprovechados de espacios previos.
Independiente del tejido urbano, el edificio de oficinas de cinco plantas, con sus entradas, secciones salientes y nichos, evoca su entorno y se adapta a la altura de los edificios adyacentes. Las sillas de trabajo son de Vitra. Las butacas, incluidos los divertidos modelos de patas amarillas Daddy, son de De Vorm.
“El edificio simboliza la innovación”
Linda Leers, asociada a Kadawittfeldarchitektur
“El InnoDom Colonia muestra su función especial como centro de investigación desde la distancia. Como un símbolo, el edificio cristalino, con su color imponente, destaca en su entorno y despierta la curiosidad por el trabajo innovador que se desarrolla en su interior”.
“En un proceso realizado en dos etapas, el complejo se diseñó de adentro hacia afuera, contando con la colaboración de sus futuros usuarios”.
“InnoDom no solo sirve como lugar de trabajo y experimentación dentro de la Universidad de Colonia, sino también como espacio para el ocio, eventos y nuevas experiencias”.
Ficha técnica:
- InnoDom
- Gateway Excellence Start-up Center.
- University of Cologne, Alemania.
- Proyecto: Kadawittfeldarchitektur.
- Directora del proyecto: Linda Leers.
- Equipo: Anika Schausten, Kay Sommer, Denise Venghaus, Tim Witte, Jan Klein, Lea-Christin Gabriel.
- Diseño interior: Daniel Trappen, Silvia Hernando, Paloma Pérez.
- Constructor: Nesseler Gruppe.
- Paisajismo: Studio Grüngrau.
- Ingeniería: Medfacilities.
- Iluminación: Arens Faulhaber Lichtplaner.
- Mobiliario: Vitra, Fermob, De Vorm.
- Texto: Van Vilallonga.
- Fotografía: Jens Kirchner.








