¿Quién no está familiarizado con la icónica barra de chocolate con colores distintivos para cada sabor? Ippolito Fleitz Group traslada este concepto de bloques de color a la nueva sede de Ritter Sport de Waldenbuch.

El resultado es un entorno de trabajo motivador que promueve la innovación, comunicación, agilidad y diversidad a todos los niveles. Además de los puestos de trabajo, Ippolito Fleitz Group IFG crea una gama versátil de áreas para reuniones y trabajo concentrado para los ciento treinta empleados de la empresa. Una interacción de tradición y modernidad forma el núcleo de la marca Ritter Sport.
El proyecto es una interacción de tradición y modernidad
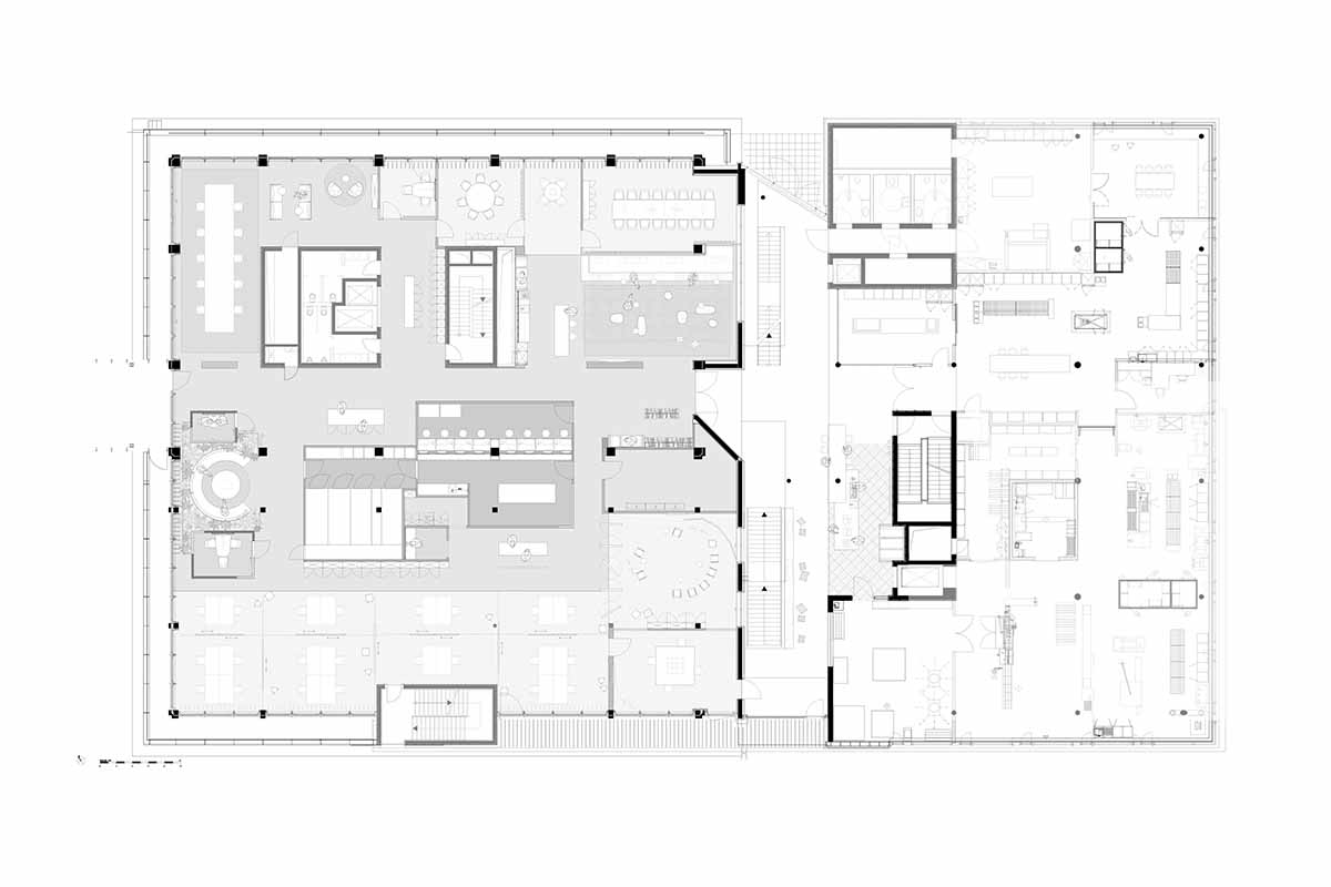
AGE Architekten Grebner+Amann diseña una nueva ampliación del edificio de 1980, conectando las dos mitades con un pasillo de vidrio. Antiguos y nuevos empleados se reúnen en este emocionante y luminoso espacio intersticial. La interfaz está pensada como un punto de comunicación e intercambio, con un diseño diferente en cada planta. En el Chocolate Café de la planta baja se ofrecen refrescos. Un piso más arriba, el Dialogue Café promueve un lugar para el intercambio informal entre reuniones. Mientras que, en la parte superior, el Wanderlust Café deja vagar la mirada.
Un recorrido sobre la historia de la marca recorre la planta baja
Otras áreas de la planta baja simbolizan la nueva cultura de trabajo en Ritter Sport. Un recorrido de la historia de la marca extendido recorre la planta baja como un hilo conductor, con contenido relevante en las paredes que cuenta historias de ayer, hoy y mañana. El mercado colorido está en el corazón del mundo laboral: una barra de cocina, estancias cerradas, una mesa de bar móvil y un amplio graderío crean un ambiente relajado. Bajo su techo iluminado pueden celebrarse tanto grandes conferencias como pequeños eventos.
Las salas de conferencias
En las tres plantas se disponen lugares de comunicación y presentación: las oportunidades de intercambio y reunión se alternan con salas para el retiro y el trabajo concentrado. Gracias al uso compartido de escritorios, los empleados pueden elegir libremente dónde quieren trabajar.
Las salas de conferencias también están disponibles para reuniones programadas, colaboraciones en profundidad, talleres o intercambios. En el Jardín de las Ideas, semiabierto, con sus dos glorietas, se trabaja en un entorno verde exuberante. En el Área Sensorial central, los expertos pueden dedicarse a las dimensiones sensoriales del chocolate sin distracciones visuales.


Apuesta por la sostenibilidad
Los materiales y productos de construcción de bajas emisiones, desde pinturas para paredes y losetas de moqueta hasta escritorios, sillas, luces y cortinas, plantas y macetas, garantizan un ambiente de trabajo saludable. Al igual que el concepto de iluminación biodinámica, la exuberante vegetación interior con plantas purificadoras de aire y la acústica ambiental están optimizadas.
Ritter Sport e Ippolito Fleitz Group apuestan por la sostenibilidad. Solo se utilizan materiales y productos duraderos y reciclables, que también son bajos en contaminantes y emisiones. El método de construcción ha recibido un certificado de oro del Consejo Alemán de Construcción Sostenible.
El Taller de Chocolate y Cacao está ubicado al lado del departamento de I+D e invita a los empleados a desarrollar sus propias creaciones de sabor. Pueden experimentar el producto desde el desarrollo hasta la producción, lo que les ayuda a identificarse con el nuevo entorno.


FICHA TÉCNICA:
Alfred Ritter GmbH & Co. KG
Waldenbuch, Alemania.
Proyecto: Ippolito Fleitz Group.
Dirección: Peter Ippolito y Gunter Fleitz.
Equipo: Christian Kirschenmann, Nadine Batz, Alessandro Belometti, Manu Dhanked, Maja Gjakun, Lena Grzib, Katja Heinemann, Tabea Jörger, Maria José Ramos, Simranpreet Singh, Anna Theodossiadou, Axel Knapp, Ismael Sanou, Katja-Lisette Seger, Arsen Aliverdiiev.
Arquitectura: ARGE Architekten Grebner+Amann
Texto: Marco Brioni
Fotografía: Philip Kottlorz.












