Aromir Arquitectes, Laura Muñoz y Nora Batlle asumen la actualización de las oficinas de la Asesoria Talenom en un edificio de gran valor arquitectónico de Barcelona. Adaptan el espacio a las necesidades contemporáneas, creando un entorno dinámico y eficiente que refleja los valores y la identidad de la empresa y preserva el patrimonio histórico.

El proyecto se desarrolla en un edificio de oficinas de la Avenida Diagonal de Barcelona. El inmueble, de gran valor arquitectónico, se encuentra en el lado montaña con orientación sur, rodeado de una rica historia y un entorno urbano vibrante.

Revitalizar y optimizar el uso del espacio
El objetivo del proyecto de Aromir Arquitectes es revitalizar y optimizar el uso del espacio, adaptándolo a las nuevas necesidades y, a la vez, fomentar un ambiente colaborativo y eficiente que refleje los valores de la marca. Para ello, se busca crear diferentes atmósferas de trabajo y zonas de reunión.
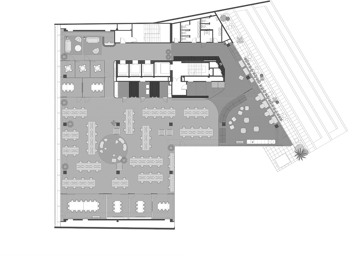
La planta se organiza de manera radial alrededor del núcleo de comunicación. Se generan seis espacios diferenciados: la sala de recepción, salas de reuniones individuales, espacios de coworking abiertos, una amplia zona central de trabajo, salas de reuniones de equipo y un área de descanso y almuerzo que también sirve como sala de conferencias. Se establecen dos recorridos diferenciados para visitantes y trabajadores, asegurando una circulación fluida y un entorno privado a la vez que diáfano. Esta estrategia aporta una gran flexibilidad a las nuevas oficinas.

Un ambiente equilibrado, funcional y sofisticado
La luz natural y la conexión con el exterior son elementos esenciales a la hora de configurar los espacios. Ordenan y distribuyen la zona de trabajo central, orientándola de forma correcta para obtener una mayor eficiencia. Además, la salida a la terraza, desde la sala polivalente, genera un lugar de descanso en un entorno al aire libre.
Para crear un ambiente equilibrado, funcional y sofisticado, se eligen cuidadosamente los acabados y revestimientos: las alfombras, el pavimento continuo de la sala de relax, el color de las mamparas de las salas de reuniones, la textura, el color y material curvado del conjunto del núcleo central.


El proyecto sintetiza la preservación del patrimonio y la innovación
También el mobiliario y la iluminación ayudan a crear un ambiente ordenado y agradable que se aleja de los convencionalismos habituales.
La ubicación estratégica del despacho en la Avenida Diagonal responde a su posición central en la ciudad y su accesibilidad. La empresa se beneficia de una mayor visibilidad y conexión con el entorno urbano, así como de un acceso conveniente para empleados y visitantes.

Destacan los acabados y revestimientos cuidadosamente seleccionados
El proyecto adapta las necesidades físicas y las digitales de la asesoría, además de representar sus valores fundamentales. Las sillas de trabajo son el modelo Se:Motion Net de Sedus. Las mesas son las Tec de Dynamobel. La cabina es de Internatinal Acoustic. Alfombra redonda, pufs y sofás en la zona de relax, de La Redoute.
En la sala de reuniones se ha dispuesto una mesa Bok de Ethnicraft, sillas Hari de Ondarreta y lámparas de suspensión Tubs de Leds C4. Las cortinas son de Margarita Ventura. En el exterior de esta sala hay un espacio de trabajo flexible equipado con sillas Arum y mesas plegables Lex, ambas de Inclass.


FICHA TÉCNICA:
- Asesoría Talenom.
- Proyecto: Aromir Arquitectes
- Dirección: Laura Muñoz + Nora Batlle
- Constructora: Arqfai Projects
- Mobiliario: Idees + Lifra.
- Iluminación: CA2L.
- Texto Alex Cienfuegos
- Fotografía Meritxell Arjalaguer.










